sábado, 12 de janeiro de 2013

Luxo: Apartamento

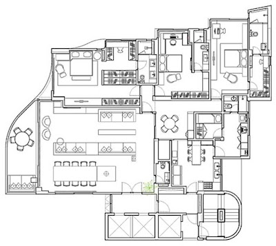
* Creio que eu nunca tenha feito uma postagem referente a essa dupla de arquitetos que admiro demais: Turíbio Santos e Zezinho Santos. Com projetos de arquitetura e decoração a dupla espalha luxo por todo país, e também fora dele. Reparem na planta do apartamento a seguir a transformação do espaço, cada canto muito bem aproveitado. Bom, a decoração nem precisa de comentário. Precisa? Luxo, luxo, luxo!


planta antes

planta depois

almoço

cozinha

suíte casal

sala

suíte solteiro

fotos: http://www1.santosesantosarquitetura.com.br/cms/opencms/santos/home/

Nenhum comentário:

Postar um comentário

Ficarei feliz com seu comentário!
A resposta será por aqui.
Bjs